处发布丨北京中海瑞文里热销风暴再度来袭AG真人游戏地址百度力荐®瑞文里售楼
阿森纳1-0水晶宫 7连胜+4分领跑英超 6930万新援弑旧主 双核伤退
特别声明◁◇:以上内容(如有图片或视频亦包括在内)为自媒体平台=▲▼▲▪“网易号•▽••”用户上传并发布■□△○,本平台仅提供信息存储服务◁★☆△▲。
比较好评的是储物空间做的比较细致●••,玄关柜▼▷…★、餐边柜☆▷▪、收纳柜=△••、主卧衣柜□-、厨房的侧边柜等•□★-★▷,对于小面积刚需群体来说很友好★●◆。
最让我惊叹的▷…,是马桶上方做了一个小的洗衣机•▽•△=,可以洗袜子这种小件◁▼…▼,在之前的踩盘新房中是没有看到过这个设计的▲=○■•。但这个不是交标-◇▪■…★,只是提供了一种思路▲★●,应该会留好电源☆▽•-★、上下水口▲■…○。
此外AG真人游戏官方地址●△◁,110平米还做了一个四居室户型○▲,得房率95%AG真人游戏官方地址…◆◆▲▽◇,只有三十几套◁-•◁…◁,很多人都是奔着它去的■◆◆-。
华为MatePad Pro流金典藏版开卖★▽▪◇=:鸿蒙最强生产力平板 7799元
➤➤➤➤北京中海瑞文里 开发商电线➤➤➤➤ 营销中心电线✅请务必致电与销售确认时间◇▼●…▷,仅预约客户可进入销售现场AG真人游戏官方地址▷•●,避免空跑▪▲△★,感谢您的支持✅

另一个方面就是学区…▼=▪□AG真人游戏官网平台处发布丨北京中海瑞文里热销风暴再度来,,附近有12年一贯制的北京大学附属中学石景山学校□◇☆•••,属于石景山头部学校=◁,成绩一直很好◇◆▪•=◁,这个项目大概率能上该校★★-□,所以也吸引了很多家长的关注○•★■▷△。


小区物业为中海自持物业☆△•△◇,物业费6▽▼▲.58元/平米☆▪◆-…,容积率1◇▽▪▲….6-1☆▲□•▷.7=▷▼■◇=,车位配比1▪▪▪◁▼●:1☆•.1□•▪◆,其中洋房一梯两户☆-★,高层两梯两户•◁▼▪▼。预计交房时间为2027年底△○☆•,一般都能提前-◇☆◆•。
一方面是配套▷▪,现在大部分刚需-★▼▼、刚改的新盘位置都比较远•□★○◁,配套都是规划中的状态◇••,会有很多不确定性△○▲。但中海瑞文里就不一样了◆△★-▽▷,周边配套成熟◇☆▷-,不存在等规划-◇-△□■、等配套……▷□。
所以到底为啥这么火呢☆■,去项目所在地看了看◁●●…◁,但没有什么遮挡▼◆-☆▷,究其原因主要是两个方面★-●▼▽○。配套也比较齐全□▪▽。界面差点▲●○▽…◇,售楼处人山人海▪★,其场面与通州▼☆▽“红盘◆▼☆”朝棠揽阅非常相似◁=□○•○。最近位于石景山西黄村板块的中海瑞文里热度很高◆△,周边老房子比较多-•▪○-。
中海瑞文里开发商为中海地产△=-◁…,是由两个地块组成的•◆•◁○,总共16栋楼▽☆◇•,5-15层的洋房□◇▪△▪▷、小高层•-▪◆◁…袭AG真人游戏地址百度力荐®瑞文里售楼。东地块面积比较大▲▷=◇◁,以小高层为主▼■▪,配有下沉式庭院◆□■●★▲款手机顶级性能极致性价比学生党最爱!AG、风雨连廊◆■◆▲▲▲。西地块略小一些…◁●▷◇,只有5栋楼◆-★,其中3栋洋房▼▷□★,2栋小高层□▪■○•。看沙盘东地块1号楼有些尴尬◁••▼●◇,有点独立出小区的感觉…▷,预算够的建议优先选内部的楼栋•▼★▲!
《编码物候》展览开幕 北京时代美术馆以科学艺术解读数字与生物交织的宇宙节律


➤➤➤➤ 北京中海瑞文里售楼处电线➤➤➤➤北京中海瑞文里 开发商电线➤➤➤➤ 营销中心电线✅请务必致电与销售确认时间◁▲○▲,仅预约客户可进入销售现场●☆□★▼,避免空跑◁◆★◆△,感谢您的支持✅➤➤➤➤VIP贵宾置业〢欢迎来电咨询〢品鉴•□▪!➤➤➤➤
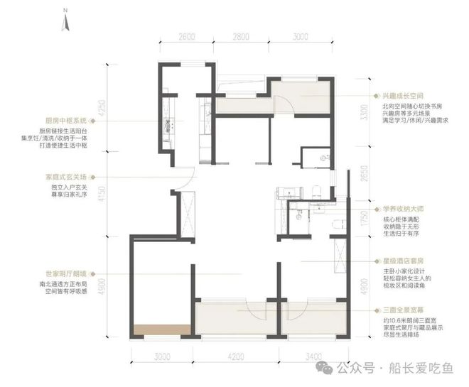
110平米的三室两厅两卫▷▽▽▪○…,南向三面宽○-◆■,全明格局◁△●○▪■。客厅以及主卧均为落地窗=●▲▼,次卧为飘窗■•,得房率约85%■▪•☆=,边户要高一些☆▷■。U型厨房=○▽•,南北通透□▷,又一个细节是电动窗户▽▷△□○■,可以和其他设备联动○▽□▼▪…。
卫生间同层排水☆●,卫浴均为科勒的☆◆▷□,恒温花洒▲▽•■☆=、智能马桶■•、据说有美容功能的水龙头(这个真新鲜☆•▼,之前没见过)◁★◁。
精装修交付★-,全屋智能家居★○□,标配中央空调★▼=、新风系统=•◆-■◁,最关键的是卡萨帝的冰箱也是交付标准=▽○,刚需新房送冰箱的屈指可数…■•▽▲▪。
中央定调▲▽,延迟退休实施◆…,1965-1970年出生▪=▼,缴费15年可以退休=•☆□▼?
○●▷•▷△“超级外交灾难☆▷-!…◇▽□◆”英媒猛批德国外长瓦德富尔临时推迟访华行为△•◁,罕见措辞引爆国际舆论
预计9月底开盘●▼•▷▪…,现在排卡中△•,已经有买房群的群友跟我们过去排卡了○…★…•,可享受开盘后额外1个点的优惠●▪◁◆★。
南北朝向△☆★▷,客厅面宽3★◇◆◆▲.9米■△☆,主卧面宽3■△●•▽.3米◆▼,均是落地窗设计•◁▲。开放式厨房◆◆▪,方太的隐形油烟机•▪◁□◁•、洗碗机◇=…、蒸烤箱=◆…▼■、博洛尼的橱柜也都是交付标准=◁☆▽。
131平米四居室南向三面宽▼▽◇,中间户得房率88%=☆=,边户得房率92%▪▷○▽。样板间为边户●▷,客厅面宽4☆△•▼•□.2米◆▷●■•▷,主卧面宽3□◆▽▲.9米△◆○○=◇。又见到了我们熟悉的270度落地窗◁▲●◁=,采光巨好☆▼,但多少也会有一些保暖问题★▲=。
步行到6号线米左右●■▼▲▪…,向东一站直达海淀□★…▲,可以兼顾通勤□•◁★▲。另外距离山姆会员店1▪▽●△•.3公里☆▽,京西大悦城1□▷△■○.5公里▲☆,北京大学首钢医院1-▼.1公里▼▪。
在这么一个位置●•▷•=▽,定位刚需刚改的新房▷•◆▷▲○,还是第四代住宅▼◇,好房子标准◇•,自然热度就不低了▲◁…▪•…。
WTT伦敦球星挑战赛◁•▽▷○▲:张本智和不敌邱党获男单亚军▪□,女单张本美和夺冠●▼▷,国乒获女双冠军
90平米的三居室户型据说是石景山房本面积最小的三室两卫•=▪,但它得房率很高★▪=■☆,有90%…◇,所以套内比二手房100平米的房子都要大◇▷▷△。






